Un écrin transformé
Rénovation complète - Amiens
Objectif
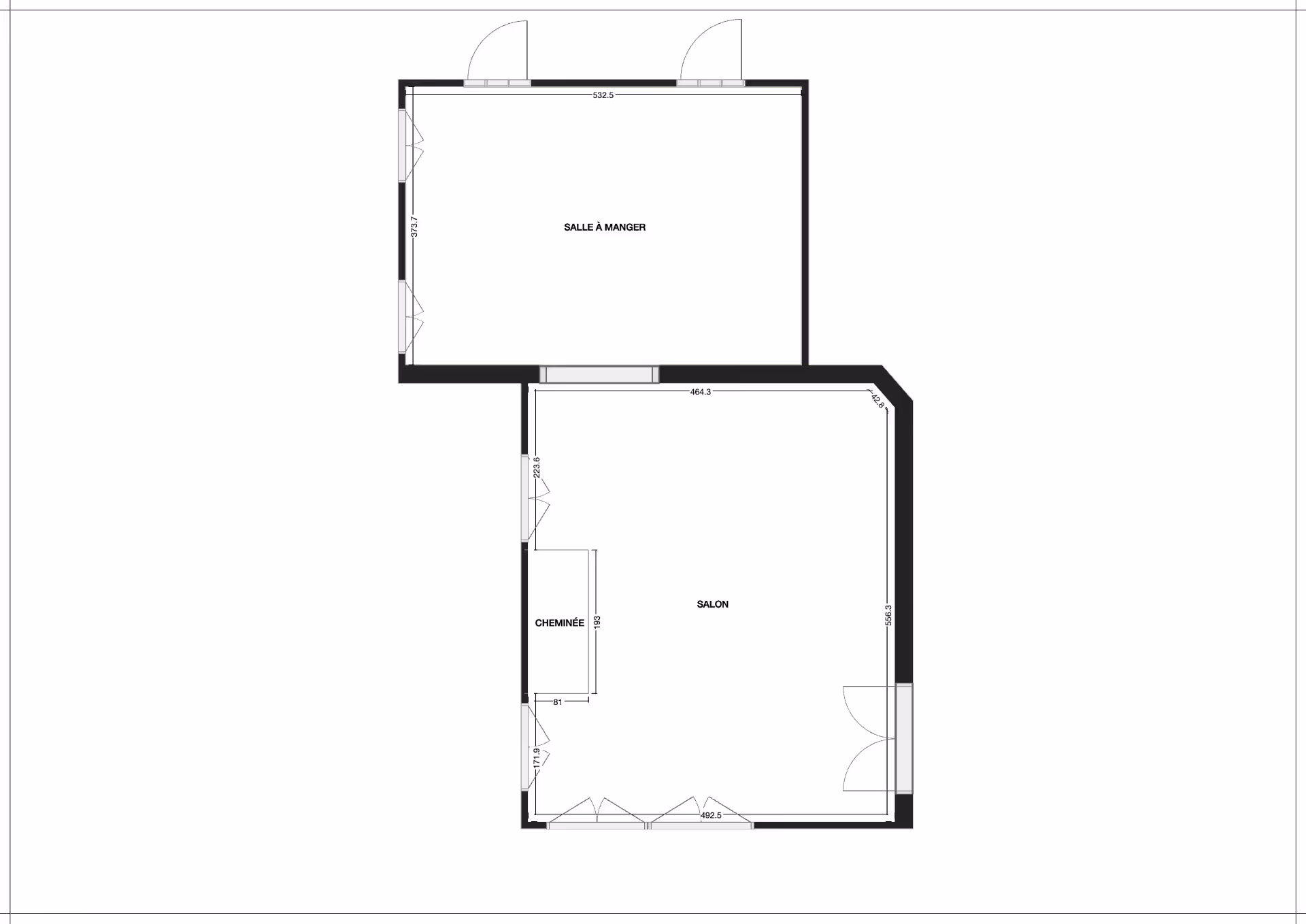
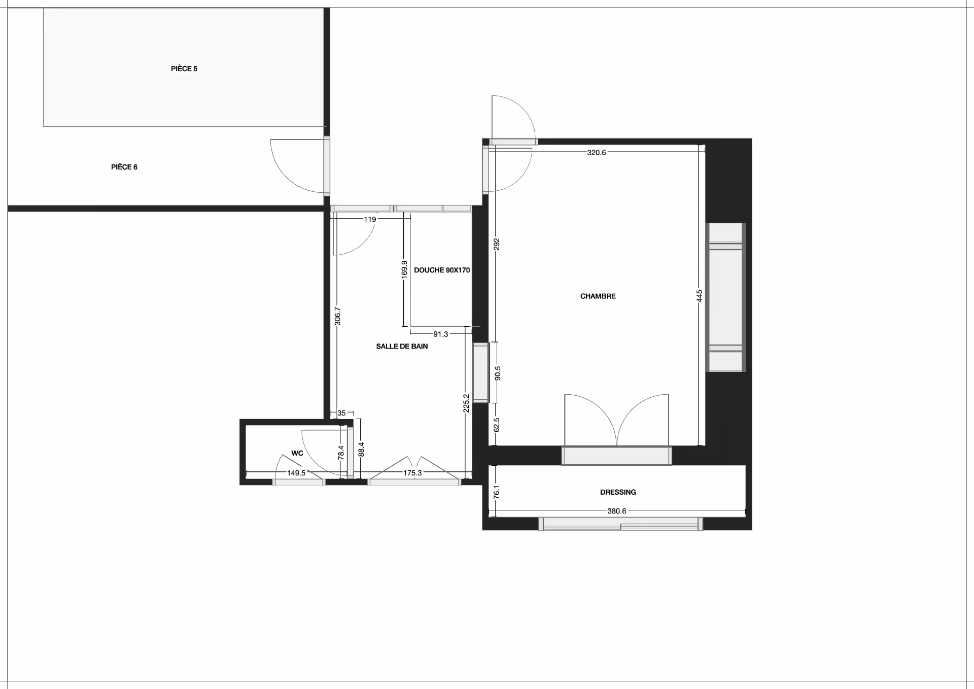
Pour cette demeure familiale, l’enjeu a été d’ apporter de la couleur et de l’harmonie dans des espaces aux volumes impressionnants et aux matériaux d’origine de très belle facture, mais qui manquaient de chaleur et de modernité.



Mes clients ont souhaité apporter leur touche à la bâtisse et se l’approprier pleinement à travers les couleurs mais aussi des meubles sur-mesure qui viendraient sublimer cet écrin plein de promesses.












.avif)
.avif)



.avif)
.avif)


.avif)
.avif)
.avif)






